AU SEIN DE TANNAY - PROJET DE 3 VILLAS MITOYENNES - VENDU
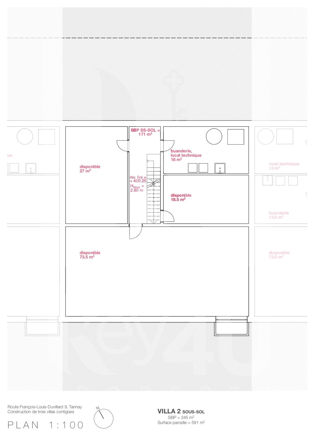
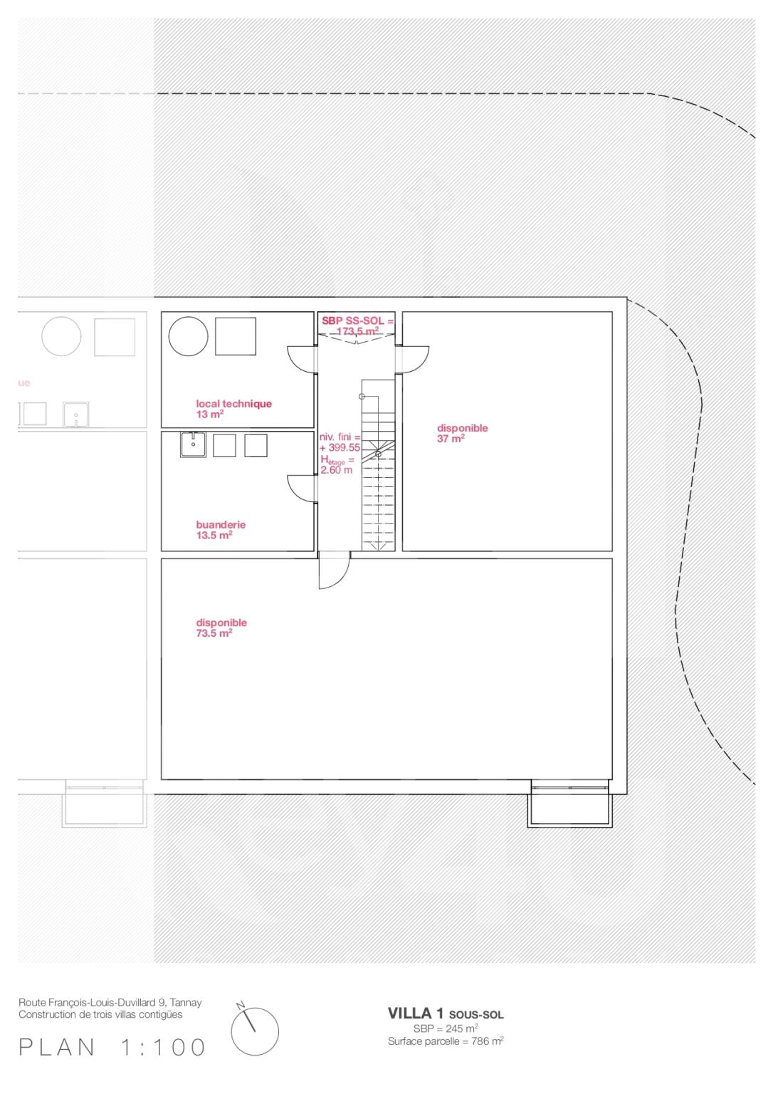
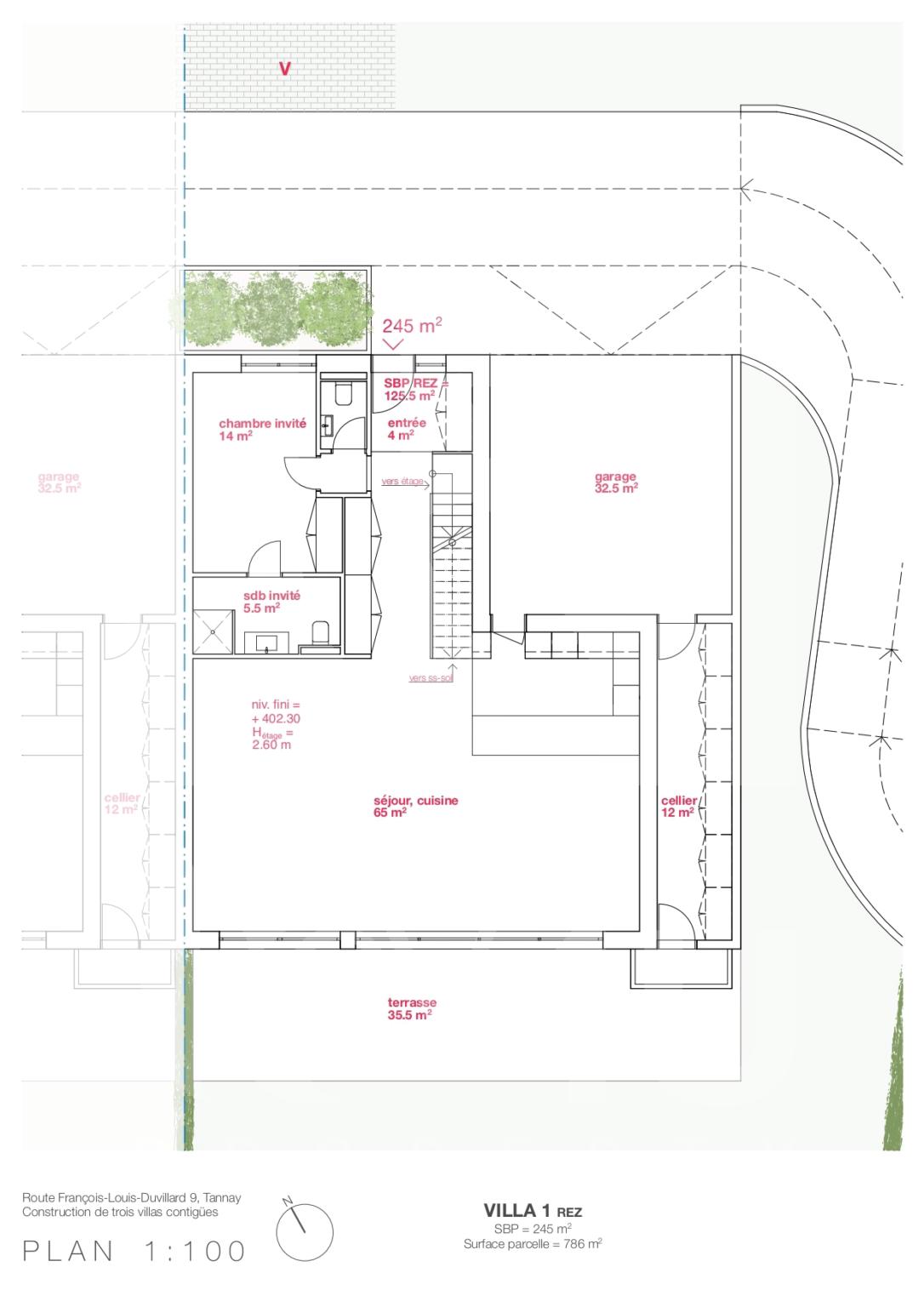
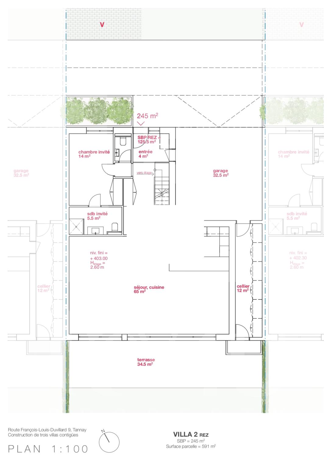
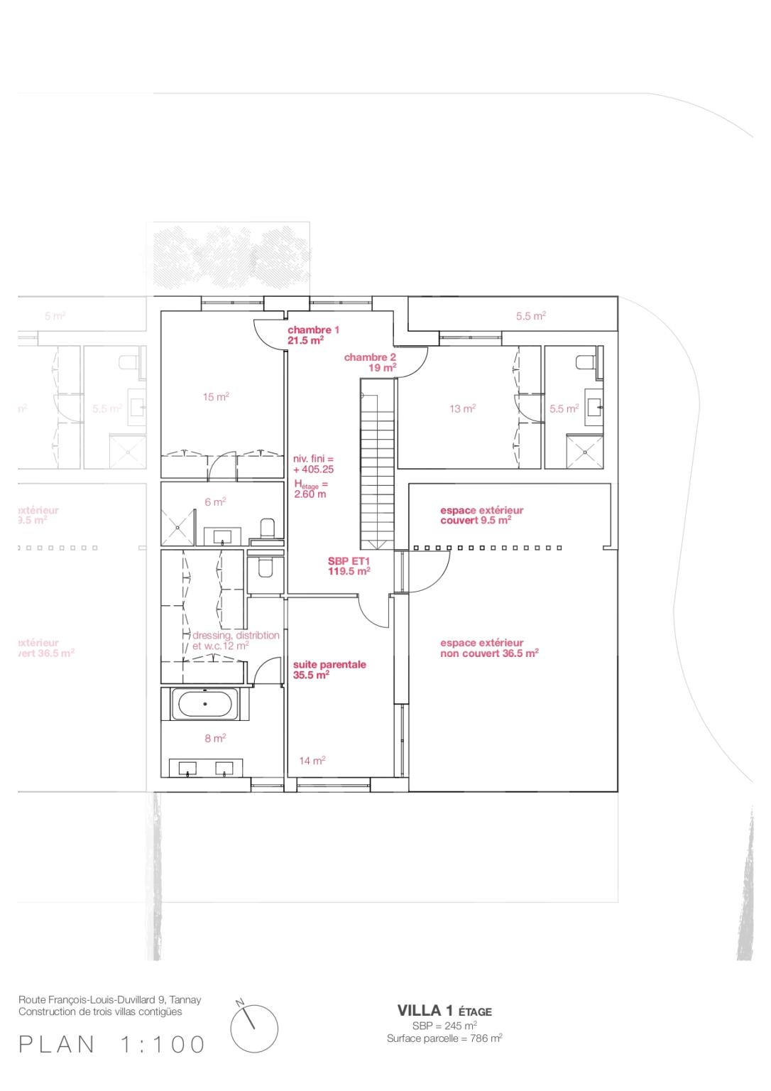
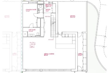
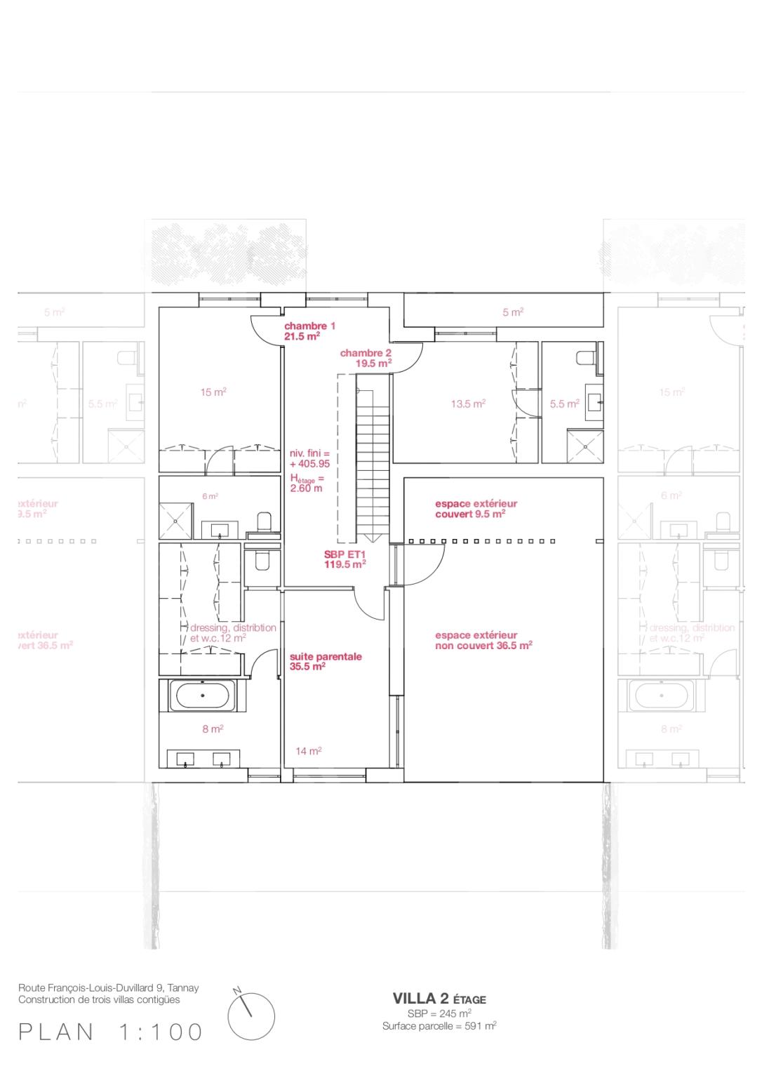
Ce très beau projet d’architecture contemporaine est situé sur la commune de Tannay (Terre-Sainte – Vaud), à proximité immédiate de la gare, des commerces du village et des écoles. Les villas profiteront d’un environnement verdoyant, calme et d’une vue partielle sur le lac et les Alpes. Les trois villas seront implantées face à un magnifique parc et bénéficieront d’une vue imprenable sur le lac. Chaque maison aura une surface habitable de 245 m2 et une surface utile d’environ 418 m2. Chacune comportera 4 chambres à coucher (hors-sol) ainsi qu’un sous-sol d’environ 170 m2 qui pouvant être réparti comme suit : Variante possible : – Une salle de jeux – Une chambre d’amis avec salle de bains – Un fitness avec spa – Des locaux techniques comprenant la buanderie, le local technique et la cave – Un studio comprenant chambre, cuisine et petit salon En plus de ces importants volumes, les villas bénéficieront de grandes surfaces de jardins sur lesquels il sera possible de construire une piscine. La villa sera répartie comme suit : Rez-de-chaussée – Un hall d’entrée avec rangements – un dégagement donnant accès aux pièces à vivre – Une chambre à coucher avec salle de douche privative ou bureau/bibliothèque – Un toilette visiteurs avec lave mains – Un vaste séjour/salle à manger avec accès à la terrasse et au jardin – Une cuisine entièrement équipée ouverte sur le séjour – Un cellier Etage – Un hall/dégagement pouvant être utilisé en bureau avec accès à la terrasse, possibilité d’installer une cuisine d’été, un jacuzzi, etc… – Une chambre à coucher avec armoires, salle de douche attenante et balcon – Une chambre à coucher avec armoires et salle de douche privative – Une suite parentale avec salle de bain et dressing privatifs et accès à la terrasse Sous-sol – Un espace buanderie – Un local technique – Une cave – Une très grande salle de jeux avec sauts de loup. Possibilité d’installer des sauts de loup supplémentaires dans la salle de jeux et dans la cave. L’extérieur profitera d’un beau jardin privatisé entouré de végétation. Chaque villa disposera d’un couvert pour deux voitures et d’une place de parking visiteurs. * Livraison prévue juin 2021. * Construction label Minergie. * Permis de construire en force.